ALONSO QUIJANO nº9
Proyecto residencial de nueva construcción que promueve 20 viviendas con garaje y trastero en el centro de Arucas en Gran Canaria.
Esta promoción consta de tres plantas sobre rasante destinadas a viviendas y una planta bajo rasante para garaje y trasteros. Viviendas modernas en zona residencial, con todos los servicios y prestaciones al alcance.
Pisos de 2 y 3 dormitorios con plaza de garaje, trastero y terrazas.
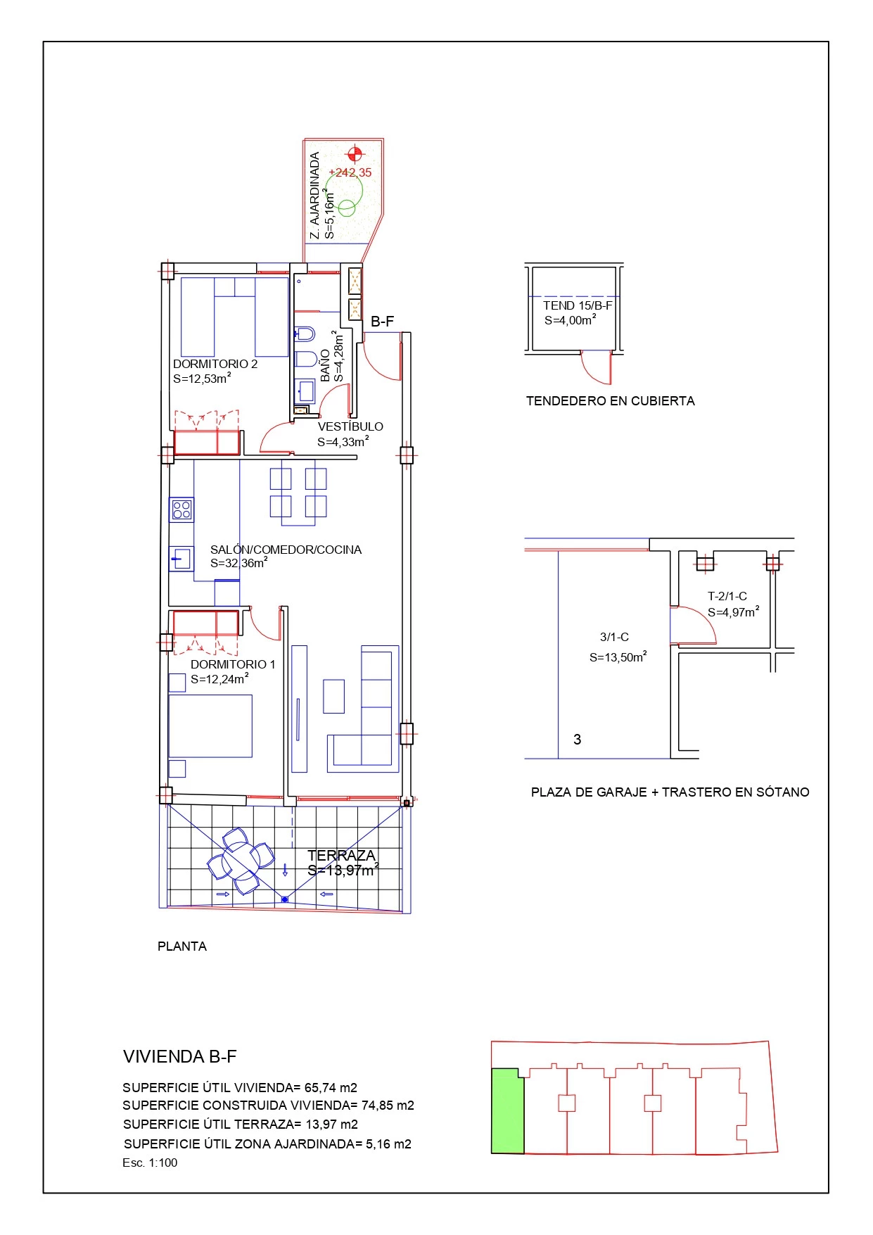
En planta baja se desarrollan 6 viviendas, 1 de 2 dormitorios y 5 de 3 dormitorios.
En planta 1ª y 2ª, 7 viviendas por planta, 4 de 3 dormitorios y 3 de 2 dormitorios.
El edificio cuenta:
- 6 viviendas con terraza en planta baja.
- 7 viviendas abalconadas en la planta primera.
- 7 viviendas con terrazas solariums de uso privativo en la cubierta.
- Cada vivienda dispone de garaje y trastero.
Progreso de la Obra
%
Avance de la obra
ARQUITECTO
CHESA Y MENA ARQUITECTOS
CONSTRUCTOR
CONSTRUPLAN
PROMOTOR
VALLE DE LA PAZ S.A.
Progreso Obra
Galería de imágenes
Tipos de Vivienda
Las superficies indicadas son aproximadas y pueden estar sujetas a modificaciones derivadas de normativa, criterios técnicos o exigencias reglamentarias.
La superficie construida total de la vivienda resulta de la adición de la superficie útil total y la correspondiente a muros y tabiques. En el caso de los tabiques que separan la vivienda de zonas comunes u otras unidades, la medición se realiza hasta el eje de estos elementos, mientras que en las fachadas se mide desde el exterior.
En el caso de viviendas que disponen de solárium o terrazas descubiertas como anexos, el propietario tiene derecho de uso privativo y disfrute, así como la responsabilidad de su mantenimiento y limpieza.
El mobiliario y la vegetación representados en los planos e infografías, tienen una función meramente decorativa y no forman parte del equipamiento incluido en la vivienda.
Viviendas planta baja
En esta planta se desarrollan 6 viviendas, 1 de 2 dormitorios y 5 de 3 dormitorios. Estas viviendas están retranqueadas respecto a la calle, dejando terrazas delanteras exclusivas de las mismas.
Las viviendas en este nivel tienen acceso directo a las Terrazas privadas. En la fachada a patio trasero, las viviendas colindan con una zona ajardinada común que se genera entre los corredores de acceso y las viviendas y que les sirve de protección e intimidad de las mismas.
Viviendas planta 1ª y 2ª
Estas plantas son iguales que la planta baja, con la diferencia de que el espacio correspondiente a la vivienda de 3 Dormitorios y el portal se ocupa por dos viviendas de 2 dormitorios, teniendo por lo tanto 7 viviendas por planta, 4 de 3 Dormitorios y 3 de 2 dormitorios, estas últimas en los testeros extremos.
Cubierta / Solarium
Se han previsto 7 zonas de solárium privadas, separadas por celosías ligeras, quedando espacios interiores totalmente libres, sin cubierta ni techo alguno.
Lugar pensado para disfrutar del exterior por el que se accederá desde las zonas comunes o desde un escalera de caracol directamente de las viviendas de la planta inferior.
Memoria de calidades
Fachada
Muro de bloque de hormigón vibrado de 20 cm doble cámara, acabado exterior con mortero monocapa, por el interior aislamiento térmico y trasdosado con placa laminada de yeso.
Cubierta
Cubierta plana transitable en tendederos, accesos y solárium de forjado de losas alveolares de hormigón. Sobre el forjado lleva la formación de pendientes, barrera de vapor, impermeabilización de doble lámina de PVC, acabado con losetas de gres porcelánico.
Suelos
Pavimento superior de tarima flotante laminada de madera/loseta de gres porcelánico con lámina anti-impacto.
Vidrios y marcos
Carpintería de aluminio anodizado con rotura de puente térmico, vidrio Climalit 6+12+33.1 (resistencia a impacto 2b2) por debajo de 12 m.
Carpintería interior
Puertas prefabricadas de madera lacadas en blanco. Puertas de seguridad empaneladas en madera en accesos de viviendas.
Suelos zonas comunes
Forjado de losas alveolares de hormigón. Pavimento superior de tarima flotante de madera/loseta de gres porcelánico con lámina anti-impacto.
Revestimiento interior
Tabique de placas prefabricadas de yeso, pintado plástico liso. Alicatado de gres porcelánico cerámico en zonas húmedas. Carpintería de aluminio anodizado con rotura de puente térmico, vidrio Climalit.
Zonas comunes
Cómodas y accesibles para todos. Muro de bloque de hormigón vibrado de 20 cm doble cámara, acabado exterior con mortero monocapa, por el interior aislamiento térmico y trasdosado con placa laminada de yeso.
Acceso
Accesos según usos: Los accesos a las viviendas se realizan por la calle Alonso Quijano en su cota más alta y el acceso de vehículos al garaje se efectúa por la misma calle desde el punto más bajo de la misma.
Paredes entre viviendas
Bloque de hormigón vibrado de 20 cm doble cámara, enfoscado y pintado.
Paredes zonas comunes
Bloque de hormigón vibrado de 15 cm doble cámara, enfoscado y pintado por el interior, con instalaciones. Muro de hormigón vibrado trasdosado de placa laminada de yeso de 15 mm, con viviendas. Placas de aislamiento acústico y térmico y placa prefabricada de yeso de 15 mm, con viviendas.
Telecomunicaciones
El edificio conecta con la red general municipal por la calle Alonso Quijano mediante el armario correspondiente de apertura exterior, que distribuye a cada vivienda por patinillo de instalaciones y falso techo. Se desarrolla en el correspondiente Proyecto de Telecomunicaciones.
Ubicación
Alonso Quijano se encuentra ubicado en el municipio de Arucas. Esta situado a 12 kilómetros de la capital de Las Palmas de Gran Canaria. El municipio de Arucas ocupa una superficie aproximada de 33 km2 en la fachada norte de Gran Canaria, extendiéndose desde la costa hasta las medianías, por encima de los 600 metros sobre el nivel del mar.
Arucas ofrece: OCIO, CULTURA, EDUCACION Y SALUD
Además, dispone de una red de transporte público excelente, donde acceder cómoda y rápidamente a otros puntos de la isla.

















































































































